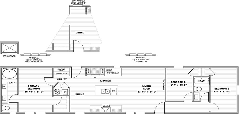
HUDSON
3 beds
•
2 baths
•
1,140 sq. ft.
•
16x76
Floor Plans

*Options shown may not be available in your region. Contact your Customer Success Manager for available options.
Interior Gallery
*The home series, floor plans, photos, renderings, specifications, features, materials and availability shown will vary by retailer and state, and are subject to change without notice.





















