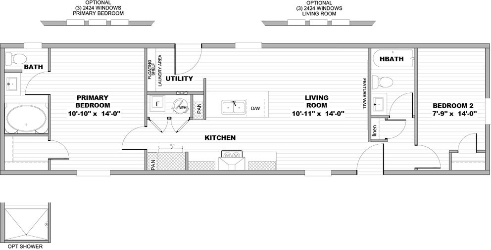
LEWIS
2 beds
•
2 baths
•
825 sq. ft.
•
16x56
Floor Plans


*Options shown may not be available in your region. Contact your Customer Success Manager for available options.
Interior Gallery
Matterport3>
Digtal Tour
*The home series, floor plans, photos, renderings, specifications, features, materials and availability shown will vary by retailer and state, and are subject to change without notice.























































