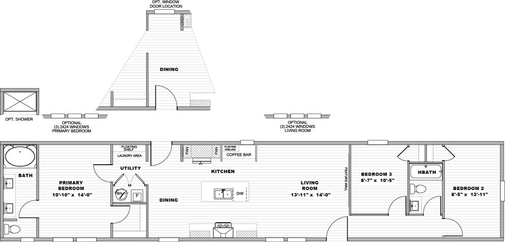
HUDSON

3 beds
2 baths
1,140 sq. ft.
16x76

Floor Plans

Standard floor plan
3D floor plan
Download Brochure
*Options shown may not be available in your region. Contact your Customer Success Manager for available options.

Matterport

Digtal Tour

*The home series, floor plans, photos, renderings, specifications, features, materials and availability shown will vary by retailer and state, and are subject to change without notice.

Ready to talk?

Let's chat.

Contact Us